티스토리 뷰
안녕하세요?
개인 사업을 통해 번 돈을 네트워크마케팅과 코인, 대부업체 배당 등에 날려 먹고 와이프한테 각서를 쓰면서 절대로 허락받지 않는 것은 투자해서는 안된다는 경고를 두번씩이나 받았는데..
어제도 LG에너지솔루션 공모주 상장에 제대로 말하지 않고 했다고 엄청나게 혼이 났다.
완전히 삐져서 당분간 얘기하지 말자고 통보를 받았는데,
이렇게 놔뒀다가는 오랜기간 대화가 단절이 될 것 같아서,
딸래미의 제안으로 손편지를 쓰고, 그것도 안돼서,
매달 5만원씩 적금을 통해 생일선물을 하겠노라고 공표하니 그때부터 슬슬 풀어지기 시작했다.^^
요즘 투자하는 것마다 마이너스 50%를 향하고 있으니 미칠 노릇이다.
예전에 어느 영화감독이 주식이나 코인하지 말고, 적금만 잘해도 본전만 찾아도 플러스라는 얘기를 들은 적이 있다.
2022년 1월은 고민의 시간이 될 것 같다.
오늘은 경기 용인시 처인구에 들어서는 대단지 브랜드 아파트인 힐스테이트 몬테로이 평면도 및 입주자모집공고에 대해서 알아보도록 하자.

‘힐스테이트 몬테로이’는 모현(왕산) 도시개발사업 구역 안에 조성되는 미니신도시급으로 현대건설이 시공 분양한다.
단지는 총 3개 블록에 지하 4층~지상 최고 29층 40개 동 전용면적 59~185㎡로 구성되고, 블록별로 1블록은 1043가구, 2블록은 1318가구, 3블록은 1370가구로 조성된다.

- 힐스테이트 몬테로이 1블록 단지배치도
1블록은 ▲59㎡A 108가구 ▲76㎡A 114가구 ▲84㎡A 216가구 ▲84㎡B 309가구 ▲84㎡C 24가구 ▲84㎡D 154가구 ▲84㎡E 28가구 ▲84㎡F 23가구 ▲84㎡G 2가구 ▲84㎡H 6가구 ▲109㎡A 38가구 ▲109㎡B 19가구 ▲펜트하우스 2가구로 이뤄져 있다.

- 몬테로이 2단지 배치도 안내
2블록은 ▲59㎡A 26가구 ▲59㎡B 56가구 ▲59㎡C 9가구 ▲59㎡D 10가구 ▲76㎡A 54가구 ▲84㎡A 408가구 ▲84㎡B 380가구 ▲84㎡C 69가구 ▲84㎡D 84가구 ▲84㎡E 76가구 ▲84㎡F 24가구 ▲84㎡G 6가구 ▲84㎡H 4가구 ▲109㎡A 106가구 ▲펜트하우스 6가구다.

- 3단지 배치도 안내
3블록은 ▲59㎡A 130가구 ▲59㎡C 44가구 ▲59㎡D 29가구 ▲76㎡A 166가구 ▲76㎡B 172가구 ▲84㎡A 303가구 ▲84㎡B 121가구 ▲84㎡C 243가구 ▲84㎡E 51가구 ▲84㎡G 6가구 ▲84㎡H 3가구 ▲109㎡A 98가구 ▲펜트하우스 4가구 등 수요자들의 선택의 폭을 넓힌 다양한 타입으로 이뤄져 있다.

- 힐스테이트몬테로이 1블록 커뮤니티 안내
각 블록별로 실내 비거리골프장이 조성되며, 피트니스센터, 실내골프연습장, 사우나, 실내어린이놀이터, 상상도서관, 프라이빗 오피스, 게스트하우스 등이 설치될 예정이다.

- 2블록 커뮤니티 안내

- 3블록 커뮤니티 안내

- 힐스테이트 몬테로이 평면도 안내
전용 59㎡A타입은 4베이 판상형 구조로 설계되며, 안방 드레스룸, 복도 팬트리 등 넉넉한 수납공간을 제공한다.

- 전용 59㎡B형 평면도

- 전용 59㎡C형 유니트

- 전용 59㎡D형 평면

- 전용 76㎡A형

- 전용 76㎡B형 정보

- 전용 84㎡A형 평면도

- 전용 84㎡B형
안방 드레스룸, 주방 및 현관 팬트리 등 수납공간을 비롯해 대형 평형에서 볼 수 있던 광폭 주방이 적용된다.

- 전용 84㎡C형

- 전용 84㎡D형

- 전용 84㎡E형

- 전용 84㎡F형

- 전용 84㎡G형

- 전용 84㎡G-1형

- 전용 84㎡H형

- 전용 84㎡H-1형 평면정보
빠르게 변하는 라이프스타일을 반영해 새롭게 개발된 평면선택제도 적용된다. 평면선택제를 통해 침실 2, 3을 수납공간 강화형으로 선택할 수 있으며, 주방 공간의 경우 최근 트렌드에 맞춰 주방은 작게, 다이닝 공간은 넓게 쓰는 ‘소형 주방+수납공간 강화형’ 옵션을 선택할 수 있다.

- 전용 109㎡A형

- 전용 109㎡B형

- 전용 143㎡A형

- 전용 143㎡B형

- 전용 143㎡C형

- 전용 143㎡D형

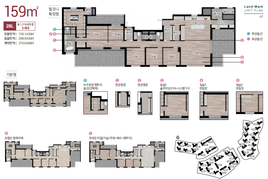
- 전용 159㎡형

- 전용 185㎡형
소형 주방과 서재형 다이닝, 주방 회전식 바테이블과 서재형 거실, 주방수납 강화형 등 다양한 옵션을 선보인다.
<힐스테이트 몬테로이 입주자모집공고 다운로드>
<힐스테이트몬테로이 한국부동산원(구 한국감정원) 청약홈 청약신청 바로가기>
이상 경기도 용인시 처인구 모현읍 왕산리 산25번지 일원에 선보이는 힐스테이트 몬테로이 평면도 및 입주자모집공고에 대해서 포스팅 해 보았습니다.
'버킷리스트 > 부동산 공부' 카테고리의 다른 글
| 이편한세상 안성 그랑루체 분양가 분양정보 (0) | 2022.02.18 |
|---|---|
| 한화 포레나 청주매봉 분양가 분양정보 (0) | 2022.02.04 |
| 광주 방림동 골드클래스 평면도 입주자모집공고 (0) | 2022.01.07 |
| 송도국제도시 더샵 송도 아크베이 b3블록 분양가 분양정보 (0) | 2021.12.31 |
| 나주역자이 리버파크 평면도 입주자모집공고 (0) | 2021.12.30 |
- 민원24
- 울산송정지구
- 신한은행
- 현대자동차
- 태그를 입력해 주세요.
- 아파트투유 청약경쟁률
- 김포한강신도시
- 다산신도시
- 르노삼성
- 원주기업도시
- 울산송정지구 분양
- 복면가왕
- 기아자동차
- 쉐보레
- 울산송정
- 주택청약
- 페이스북
- 동탄2신도시
- 빕스
- #자기계발
- 르노삼성자동차
- 개봉예정영화
- 위택스
- 주택임대사업자
- 용인수지파크푸르지오
- 신한은행 인터넷뱅킹
- 한강공원
- 신길뉴타운
- 아파트투유
- 아파트투유 청약
| 일 | 월 | 화 | 수 | 목 | 금 | 토 |
|---|---|---|---|---|---|---|
| 1 | 2 | 3 | 4 | 5 | 6 | 7 |
| 8 | 9 | 10 | 11 | 12 | 13 | 14 |
| 15 | 16 | 17 | 18 | 19 | 20 | 21 |
| 22 | 23 | 24 | 25 | 26 | 27 | 28 |



